Skip To Content

3154 Northside Drive , M

Key West, FL 33040
  • $335,000
  • STATUS: Closed
  • ON SITE: 347 Days
  • MLS #: 613934
Sold - 06/03/2025
$335,000
SOLD - 06/03/2025
  • 0
    BEDS
  • N/A
    ACRES
  • 0
    BATHS
  • 1
    1/2 BATHS
  • 1,025
    SQFT
  • $0
    $/SQFT
Neighborhood:
Type:
Commercial
Built:
1991
County:

School Ratings & Info

Description

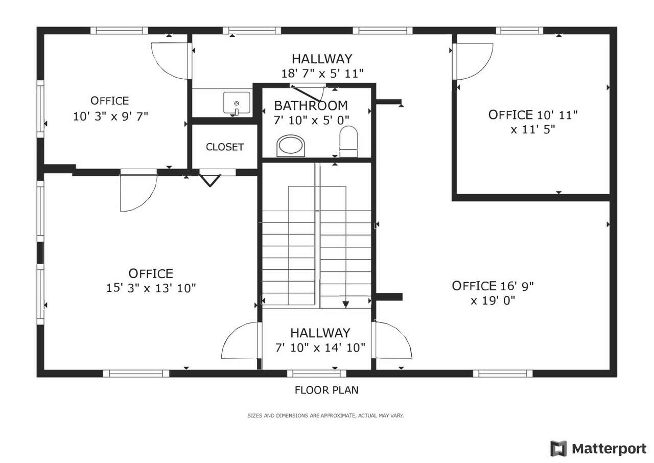
Major Price Improvement makes this an ever better value for end user or as an investment for a savvy investor. Professional Office space located on Northside Drive in a busy commercial complex. High traffic location between the two Publix stores and close to banks, schools and housing. This unit is the entire 2nd floor of a two unit building at the front of the complex facing Northside Drive. There are two separate entrances providing the opportunity for shared office spaces or other rental scenarios. Plenty of off street parking and high visibility. The complex has a variety of businesses and professional services. Don't miss out on this incredible opportunity.

Monthly Payment Calculator



The data relating to real estate for sale on this website comes in part from the Internet Data Exchange program of the Florida Keys MLS, Inc. Real estate listings held by brokerage firms other than Coastal Collection Real Estate Inc. are marked with the MLS Logo and detailed information about them include the name of the listing broker's office.
www.buythekeys.com/homes/160956032
Print Image

3154 Northside Drive , M Key West, FL 33040

  • Price: $400,000
  • Status: Closed
  • On Site: 347 Days
  • Updated: 56 min ago
  • MLS #: 613934
0
Beds
0
Baths
1
½ Baths
N/A
Acres
1,025
SQFT
$0
$/SQFT
1991
Built
Neighborhood:
New Town
County:
Monroe
Area:
04 - Key West
Property Description
Major Price Improvement makes this an ever better value for end user or as an investment for a savvy investor. Professional Office space located on Northside Drive in a busy commercial complex. High traffic location between the two Publix stores and close to banks, schools and housing. This unit is the entire 2nd floor of a two unit building at the front of the complex facing Northside Drive. There are two separate entrances providing the opportunity for shared office spaces or other rental scenarios. Plenty of off street parking and high visibility. The complex has a variety of businesses and professional services. Don't miss out on this incredible opportunity.
Exterior Features

Construction Frame Dockage None Land Size Less Than 1/4 Acre Lot Size IRREG 000 Off Street Parking yes Roof Metal Roof Side Median Style Commercial Vehicle Storage Guest ParkingOff Street Parking Waterfront None Waterfront YN No Waterview No Waterview

Interior Features

Appliances No Appliances Cooling Heating Central Air Floor CarpetCombo Net Leasable Area 1025.00

Property Features

Assoc Hoa YN Yes Assoc Maint Fee Per Monthly Assoc Maintenance Fee 813.00 Assoc Right Of Refusal No Bank Owned No Bank Owned Financial Status No City KEY WEST Commercial Type Office BuildingsProfessional Service Control Depth 0 Electric Circuit Breakers Electric Meters 1 Fee Includes Bldg Exterior MntCommon Area MntBuilding Insurance Flood Zone AE Key West Neighborhood New Town Legal UNIT M(B) OFFICES AT NORTHSIDEA CONDOMINIUM OR1110-1420 OR1110-1421 OR1834-1233 OR2348-753 OR2343-263/304AMD OR2347-1 Listing Board Key West Association Mile Marker 3.00 Potential Short Sale No Potential Short Sale Financial Status No Property Type Commercial Sewer Accounts 1 Sq Ft Source Tax Records Tax Year 2024 Taxes 121.31 Total Units 1.00 Utilities FKAAMunicipal Sewer Water Meters 1 Zoning RO - Residential/Office

Listing courtesy of Laura Mcchesney of Preferred Properties (KW): (305) 294-3040.


The data relating to real estate for sale on this website comes in part from the Internet Data Exchange program of the Florida Keys MLS, Inc. Real estate listings held by brokerage firms other than Coastal Collection Real Estate Inc. are marked with the MLS Logo and detailed information about them include the name of the listing broker's office.
 
https://bt-photos.global.ssl.fastly.net/flkeys/1280_boomver_2_613934-2.jpg https://bt-photos.global.ssl.fastly.net/flkeys/1280_boomver_2_613934-2.jpg https://bt-photos.global.ssl.fastly.net/flkeys/1280_boomver_2_613934-2.jpg
Logo
Coastal Collection Real Estate Inc.
422 Fleming St Suite 7
Key West FL, 33040